近代上海是一个五方杂处、华洋混居、充满变革与机遇的时代。作为清末民初最早开埠地之一,上海自然成为最早接触西方文化和生活方式、中西文化碰撞最频繁的大都市了。住宅建筑尤其如此,在满足实用性、居住性和经济性的同时也映射出时代对建筑形式和居住生活的审美要求,是时代和社会本质的真实写照。
近代上海住宅发展特征和文人群体的生活状态
由于战乱大量难民涌入上海,原本“华洋分居”的局面被打破了,人口激增促使上海房地产业逐步发展,为难民和华人居住的里弄住宅大量建造起来。上世纪三十年代里弄住宅出现了新式里弄、花园里弄、公寓里弄和弄堂公馆等不同居住形式,以满足不同阶层的住户需求。除了里弄住宅、独立住宅外,近代集合住宅——多层或高层公寓也在上世纪30年代开始出现,公寓风格也出现中国复古式、国际主义、装饰艺术等多种风格并置的局面。
上海的迅速崛起使得它在19世纪晚期成为一个充满多样性和变化的都市中心,上海附近、位于长江入海口的江南一带素以教育繁盛著称,但连年战争使得许多教育设施被毁,并产生了一批需要工作和角色认同的知识分子。上海的都市活力深深地吸引了这些文人,它的新奇和开放令他们惊讶和兴奋,而对金钱赤裸裸的追逐又令他们厌恶,对于大批知识分子来说,卖文为生成为他们来到上海谋生立足的主要经济来源,各大报社、出版社、译书馆及新式学校便是他们最佳工作选择。作为出版、教育和娱乐服务的中心,上海在知识、观念、信息和娱乐上都是市场的主导。专业写作、广告、照相、月历绘画和插画绘制等新的岗位空缺,把年轻的作家和商业艺术家、记者、画家和插画家等吸引到了上海。在租界的新媒体和各种机构上班标志着文人变成了城市知识分子,他们是租界知识生活的主力军,而文人居所的样式也夹杂着这种新旧混合的时代气息,为上海城市生活方式提供了参考。
近代上海文化名人居住空间形态及海派家具
这些来自全国的知识分子在经历了“沪漂族”的一段艰苦生活后逐渐趋于稳定,其中不少文化名人在沪留下了他们人生中最难忘的经历与作品,也留下了他们寓居上海的住所。他们大多数居住或租住在里弄住宅里,如沈尹默、郭沫若、丁玲、叶圣陶、秋瑾、沙汀及茅盾等,或公寓住宅里,如张爱玲创作顶峰期与其姑姑张茂渊住在常德公寓,只有少数家庭殷实或社会名望居住在别墅洋楼里。如今部分名人故居被精心修缮后陆续对外开放,他们中的杰出代表——鲁迅、巴金、柯灵三位著名作家都曾在上海工作、生活了多年,他们的寓所作为上海乃至全国重点文物单位较完整地再现了当年主人生活的场景,为人们展现出两代文人真实鲜活的居所样貌和生活方式。

图1
三人的故居均位于租界内,涉及花园别墅、别墅式公寓和新式里弄,这三种住宅形式和风格不仅反映出近代上海居住质量和社会地位的差别,也成为近代上海西化进程最有力的写照。巴金故居位于法租界西段越界筑路内,是一幢建于1923年的欧洲独立式花园住宅,原为苏联商务代表处,巴金夫妇与女儿一家人1955年后入住于此。在此之前,巴金从日本回国后在名人聚集的淮海路淮海坊59号居住过18年,建于1924年曾名为“霞飞坊”的淮海坊是大规模以3层砖木结构住宅为主的新式里弄,由于规划设计良好,该居住区有着西方民主自由的政治空气和浓郁的文化艺术氛围,受到商贾巨富、军政要人、文化艺术界人士的青睐。据史料记载,这幢武康路113号的花园住宅原属英国人毛特保·林海,占地2.226亩,建筑面积641平方米,1941年太平洋战争爆发后此地为俄侨通商事务所即后来的苏联驻华商务代表处使用。 巴金作为对国家有特殊贡献的文艺工作者入住此楼,完成了晚年力作《随想录》。(图1)。

图2
由邬达克设计的柯灵故居同在法租界的越界筑路区内,建于1933年,为西班牙风格的三层公寓洋房,属高档住宅区(图2),与巴金故居只有不到400m的距离。据悉该住宅原为国民党要员陈伯藩所有,解放后房屋归政府所有,而伟大的文学家鲁迅早年辗转于上海多处里弄和公寓居住,最后在日本友人内山先生的帮助下定居于虹口区大陆新村的新式红砖里弄内(图3)。

图3
文人居住空间之客厅
为适应西化的居住文化和生活习俗,加之城市住宅面积的受限,越来越多的城市住宅突出客厅的实用性和现代性。受西方上流社会生活方式的影响,西式住宅将餐厅从客厅中分离出来,从三位作家的客厅功能格局来看,西化非常普及,

图4

图5
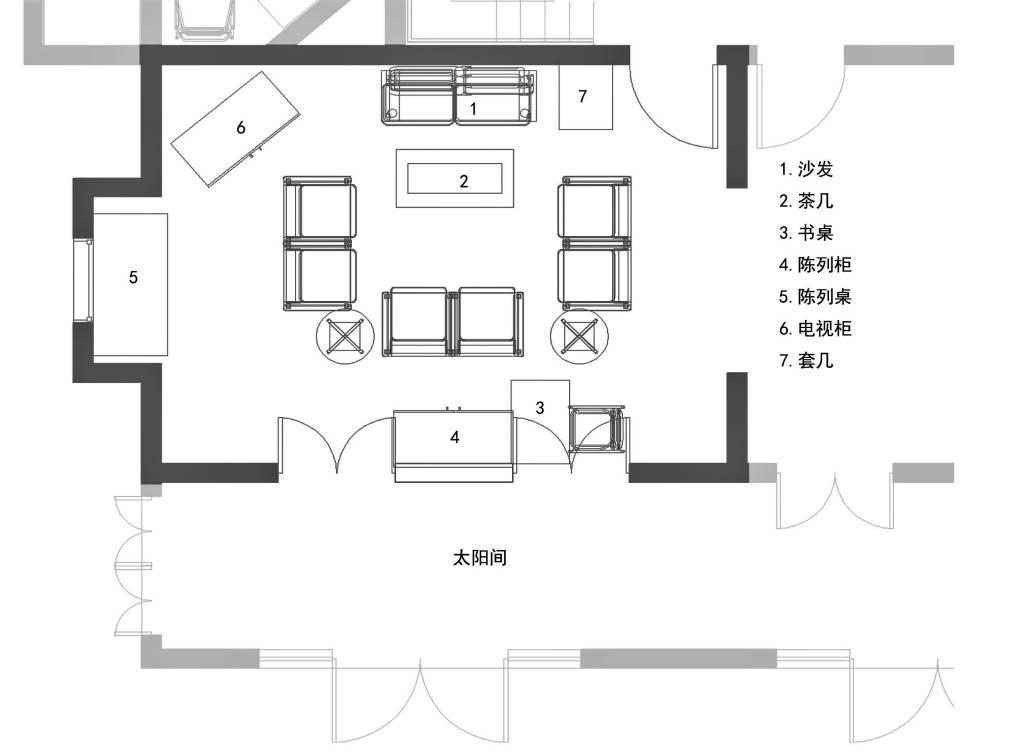
巴金故居的客厅宽敞明亮,木质落地门与太阳房相连。因主人好客及留洋背景,巴金的客厅居中布置了会客沙发区,四个单人沙发及两个两人沙发,配以多款中西不同样式的茶几、边几和边柜,两扇通往太阳房的落地门之间摆放着弧线形山花装饰的西式玻璃陈列柜。客厅里最重要的建筑部件——壁炉仅被巴金作为墙面装饰而已,没有真正使用。深栗色木质壁炉架上悬挂着好友林风眠的画作。客厅中靠近太阳房一侧的一张小书桌和一把西式扶手椅流露出主人的嗜好,由于沙发太软,晚年的巴金在接待国内外好友时常坐于书桌一侧,陪伴和聆听宾客们谈天。(图4,5)。

图6

图7
柯灵故居位于公寓203室,该楼层有两套独立房型,每套均配备了独立的厨房、卫生间、卧室和客厅。柯灵的客厅有会客、用餐和藏书的功能,呈现出中西混搭风格(图6)。中央会谈区以一组布艺沙发展开,一张长沙发作为会客和用餐的分隔,靠窗处布置了六人餐桌(图7)。两侧墙面都摆满了玻璃书柜,这些高低不一的书柜、陈列柜、边几等家具均为上海盛行的装饰艺术风格,而存放二十四史的书柜则为传统古典式,加上中式字画、瓷质花瓶还有摆件,使客厅庄严稳重而不失时尚气息(图8,9)。

图8

图9

图10
爱好阅读的柯灵把客厅变成了一个大书房。鲁迅故居所在的新式里弄住宅共有三层,独立进出,南向入口后有一个不到10平方米的小庭院(图10),底楼客厅为南北向,有些昏暗冗长,前区为会客区,后侧为用餐区,中间用装饰玻璃落地门隔开。会客区被一套6人木质餐桌椅所替代,餐桌前方靠墙是一张木质写字桌,为鲁迅好友瞿秋白之遗物,依次靠墙摆放了玻璃书柜、缝纫机、留声机、西式碗橱等生活器物,用餐区中央为一张小方桌配四把椅子,靠走廊的侧墙还摆放了带镜面的民国洗漱架(图11、12,13)。

图11

图12

图13
文人居住空间之书房

图14

图15
书房是住宅中最能体现文人工作状态的空间,民国时期书房却兼有会客功能。巴金和柯灵都有独立书房,而鲁迅则将它与卧室合并。巴金的书房分为写作和阅览会客区。靠入口一侧摆放沙发、茶几以及工艺品陈列柜,靠近阳台一侧摆放着写字桌椅与书柜,书柜前还放置一几两椅的成套家具(图14,15)。书房的壁炉也只作为墙面装饰构件而已,前置沙发。与巴金书房相比,柯灵的书房不大,约10平方米左右,三面墙都布置了高大的玻璃书橱,大写字桌摆在书房中央,桌上摆放着柯灵阅览的书籍、文件以及闹钟、笔筒、眼镜及铁质旧台灯,靠窗放置一张单人扶手沙发(图16,17)。

图16

图17
而鲁迅故居相比之下最为简单寒碜,只是在卧室中辟出一个临窗的工作区域,沿窗台放置书桌椅,一侧墙面放置书柜,桌子另一边则是一个藤编旧躺椅供小憩休息。遗憾的是由于多次搬家避难,鲁迅的藏书已分散到其他几处故居,此处并无多少(图18,19)。

图18

图19
三位文人的写字台都是临窗布置,或面向窗户,或侧对窗户,都愿意在光线明亮、阳光充足的地方进行写作。由此可见阳光和窗景成为三位文人写作不可缺少的重要环境要素。
文人居住空间之海派家具风格
三位文化名人故居的家具配置可以折射出民国上海的经济繁荣和生活潮流。建筑的洋化趋势必然导致家具的洋化,上海开始出现华洋结合的新式家具——海派家具,这是西方居住文化逐步渗透到百姓生活的必然结果。海派家具迎合了大众普遍的崇洋心理,成为民国家具的主流。此类家具大多以高档的红木制作,木材基本来自印度和泰国,洋气、实用、便利、价廉等特点使海派家具与西化的居住空间和时髦的都市生活方式高度匹配。除了西方侨民、权贵买办、富贵巨贾、军政显要外,文化界精英、新兴市民等大量中产阶级也成为新型中西融合家具的消费主力军。
三个名人故居的客厅、书房和卧室涉及了诸多海派家具门类,客厅家具包括沙发、餐桌椅、陈列柜,书房家具包括书桌、书柜、床与梳妆台、大衣柜。
沙发属于西洋舶来品,是西式客厅的标志性家具。民国时期沙发成为上流社会的家居必需品,拥有一套沙发成为了一种时尚与身份的象征,巴金和柯灵的客厅中都布置了成套布艺沙发,为空间增添了时髦而舒适的居家氛围。

图20

图21
三位文人的用餐区都采用了海派风格的餐桌椅。巴金故居的独立式餐厅最显气派,中央一套可调节的深栗色椭圆形木质餐桌配置了6把餐椅,餐桌檐口有装饰细节,桌面可根据人员变动而缩放,四根方形桌腿向下收分变细后在收尾处放大,椅面为皮质软包。(图20)柯灵客厅靠窗处布置了一个6人餐桌椅的用餐空间,餐桌布上瓷器花瓶里绽放的粉色百合。鲁迅故居的底楼客厅比较昏暗,客厅内部白天点灯。客厅会客区摆放着一张矩形餐桌椅(图21),餐桌腿融合了机器旋制的纺锤纹样装饰,这些由清式家具的手工式“搭叶,虎豆,马蹄”等式样基础上引进机器制造而产生的“蜜瓜、螺旋、爪抓球”等西方式样 在海派家具中运用广泛。作家萧红在《回忆鲁迅先生》一文中,对鲁迅的上海寓所有过详细的叙述:“鲁迅先生家里,从楼上到楼下,没有一个沙发,鲁迅先生工作时坐得椅子是硬的,休息时的躺椅是硬的,到楼下陪客人时坐的椅子又是硬的。”
陈列柜是近代西方传入中国的新式家具。西方文化中客厅是家庭活动与接待宾客的场所,带有玻璃门的陈列柜便是展示主人文化品位和生活喜好的最佳家具。陈列柜采用了西方的玻璃技术将封闭与开敞做了一个完美的折衷。 巴金客厅里带有巴洛克山花样式的工艺品陈列柜放在连接太阳房的最醒目位置,与壁炉正好形成对景,而一些玻璃柜也可以作为书柜使用,三位文人的客厅和书房里都放置了不同风格的玻璃书柜,为居室增添了不少文化气息。

图22
办公家具是民国时期的新式家具,书桌体量较传统减小,实用性增强,案面下方利用桌腿位置设置抽屉,并形成一个放置双腿的方形洞口。三位文人使用的书桌都是民国时期流行的两边带抽屉式样的写字桌。柯灵书房的大写字桌来自夫人陈国容的娘家,因夫人长辈多在银行执业,故这张银行铁桌便成为柯灵的书桌,在这张书桌上,柯灵分类叠放着各种书籍、工具书、与作者友人的通信还有印有《文汇报》字样的稿纸和红蓝铅笔。鲁迅与柯灵的书桌都配有木质转椅。(图22)。
书柜是书房家具中一个重要组成部分。受西式生活的影响,民国时期大量洋装书出现,书由传统的“躺式”变为立放,相应的书柜和书架也开始出现了。三位文人的故居里都摆放着不同规格和风格的书柜,是写作区重要的场景要素。

图26

图27

图28
民国时期卧室由传统的私密性渐渐走向开放性,卧室家具随着住宅格局的改变发生了本质性变化,一改以往的厚重形象,更注重实用性和装饰性,出现了片子床、梳妆台、大衣柜和多屉柜等。西式的片子床与席梦思床垫的组合彻底颠覆了中国传统床具,应运而生的片子床结合西洋床的特点改为高低两块挡板,而床头柜则放置台灯、电话机、书报或饰品等物品。巴金和柯灵的卧室中使用了不同装饰纹样挡板的片床(图26,27),而鲁迅故居二楼卧室中则陈列着一张带有本色麻布顶帐的铁质片子床(图28)。为女性专属的梳妆台在民国时期应运而生,一般由三面镜子组成,满足了不同女性的功能需求。柯灵卧室中柯灵夫人使用的就是一款经典的海派风格梳妆台(图25)。

图25
民国时期大衣柜一般高2米左右,集挂衣、储衣叠放、陈列于一身,由檐帽、柜身和底座三部分组成,为“穿靴戴帽”的三段式。西风东渐致使中国人的起居习惯悄悄发生了改变,衣服的收纳方式从传统的叠放变为悬挂,衣柜空间也随之相应要变大,需设一个立式空间以利于衣服挂放。衣柜外面装上穿衣镜能,柜底或柜门内中部还设有抽屉以存放贵重物品或细小物件,如鲁迅卧室的大衣柜(图23),而柯灵卧室的大衣柜则在上世纪50、60年代畅销于普通市民家,是为适应解放后普通大众的居住条件而在民国大衣柜基础上进行了简化,保留中门为镜门的三门式造型,并对原先的三弯腿也加以简化(图24)。

图24
上海近代文化名人居住空间的特征
以鲁迅、巴金和柯灵三位文坛巨匠为代表的上海近代文化名人故居室内空间有两个鲜明特征,一是写作空间与生活空间的交叠,二是家具风格的多样性。

图29

图30
文人写作一般主要在书房里进行,但这三位文人的写作和阅读早已渗透到日常起居中,写作空间与起居空间相互交错重叠。巴金故居的写作桌是三人中最多的,除了专门的书房外,客厅、底楼阳光房和二楼阳台等处都摆放了书柜和书桌(图29,30);而柯灵书房的三面墙安置了落地玻璃书柜,中间放置一张大写字桌,,客厅一侧墙面也放满了玻璃书柜。柯灵的藏书很多,约130多箱书籍。(图31)。文革期间柯灵家中书房和客厅被查封,于是卧室南部的内阳台就成为柯灵临时“书房”,多用柜翻开前板可替代书桌用于书写,柯灵笔耕不辍。书房和客厅解禁后,柯灵因考虑妻子患有神经衰弱便在书房放置一张钢丝床备用。鲁迅的写作通常在客厅或卧室中进行,他每每工作累了,就在书桌旁的躺椅上小睡一会。

图31
海派家具作为民国家具的主流,均为成套成系列的设计与制作,风格上大致分为仿明清式和仿西式两类。一套仿清式客厅家具由三人沙发、扶手椅、单人沙发、罗圈椅、长茶几、小方茶几、软包搁脚凳、仿清式花盆架和仿清式落地灯座等组成,而 “维多利亚”牌西式成套卧室家具则由三门大衣橱、双人高低床、床边柜、双门五斗橱、小圆桌、梳妆台、梳妆凳、单人沙发、靠背椅、贵妃椅、落地灯、高低侧几等组成。 从三个文人故居的家具陈设来看,成组配套的家具很少,风格多样化。究其原因,从民国时期到文革时期,长期的战乱和政治动乱给三位文人带来了动荡不安、颠沛流离的生活境遇,他们为了国家命运而以笔作战,把个人的安逸享乐置之度外。出于安全考虑,鲁迅辛苦辗转了北京、上海多地居住以避开敌人的监视,最后以日本友人内山完造的名义租下了位于虹口区日租界的大陆新村,在此度过了他人生中的最后几年,而巴金和柯灵都在上世纪50年代入住,后在60年代文革期间也遭受过巨大的冲击和折磨,从三人的居住环境来看,鲁迅故居最为简朴老派,故居中的家具风格很杂,融合了绍兴老家的藤编风格、传统改良型铁艺风格、现代办公风格以及摩登海派风格等多种流派式样。
在法租界生活近半个世纪的巴金和柯灵比起前辈鲁迅来更能接受西方思想和都市生活方式。巴金早年留法,巴金故居最有洋味,壁炉、沙发、玻璃装饰柜、钢琴、中国画、伸缩式椭圆餐桌椅及民国片子床,这些家具带有浓郁的西式和海派风情,但家具之间的风格也并非一致。相比巴金,柯灵故居中既有朴素实用的家具,书房中的书柜、写字桌、大衣柜和翻盖式写字桌等,也包括一些中式字画时髦家具。柯灵故居在三位名人故居中可谓生活气息最浓,夫妇俩在这套洋楼里生活长达40多年,两人陆续添加了不少家具物品和书籍杂志,最后被柯灵夫人陈国容女士悉数保存下来。作家陈丹燕参观后写到:“客厅还保持着最后一次接待客人的样子。这里保留下了都会特有的斯文与摩登趣味。门厅口摆着Art Deco的方茶几,靠窗有Art Deco的大菜台,矮柜上安放着19世纪初新艺术风格的铜持灯女雕像。柯灵用的写字桌是柯灵太太从娘家带过来的铁写字桌,原来是银行里用的,非常沉重坚固,柯灵从上世纪50年代开始一直用到去世。那些坚固的抽屉里放满了他的信件、便条和笔记以及《文汇报》从前用的方格稿纸和红蓝铅笔。”
作为上海近代文人的代表,鲁迅、巴金和柯灵具有高度的职业敏锐度和对新思想孜孜不断的追求和批判精神,他们不同程度地摆脱了传统生活的羁绊,接受了中西合璧的海派生活方式,这种风气后来在摩登上海的文人圈中逐渐弥漫开来。从三位不同的居家形态中可以看到,三位名人的身后都站着一位默默支持和奉献的妻子——许广平、萧珊和陈国容,她们协助丈夫翻译、整理相关资料和书籍,更担负起照看老人和孩子的家庭重担。这些女性将生活重心放在家庭里,花费心思添置各种家具器物,让居住生活充满祥和乐趣。萧珊与巴金、婆婆、小姑住在一起,作为大家庭的一员,曾热心为婆婆、小姑挑选家具,而从“文革”摧残中渐渐康复后的柯灵和陈国容恢复了对生活品质的追求,每次柯灵领到稿费时,陈国容就会去旧货市场淘些摆设来布置家里,此外鲁迅故居三楼流露出鲁迅温情的一面,许广平和儿子周海婴陪伴鲁迅度过了人生最后一段美好的家庭时光。对这三位名人居住空间的解读,使我们走近名人们的生活环境,领略近代文人的居住风采,从而对海派文化魅力有更进一步的了解和认知。
(图片来源:图1,2,3,7,8,9,10,12,13,17,19,21,22,23,24,25,27,28,31 作者自摄,图4,6,11,14,16,18作者根据相关资料绘制,图5,15,20,26,29,30 由巴金故居提供)
[上海市历史博物馆(上海革命历史博物馆)2025年最新推出以“近现代上海城市景观与社会生活”为主题的系列学术沙龙活动,本文内容来自第一期沙龙“大上海与现代性”主题报告,文章由作者改写,澎湃新闻经授权刊发。]